
Product Overview Intel
®
Server Board S5000PAL/S5000XAL TPS
Revision 2.0
Intel order number: D31979-011
4
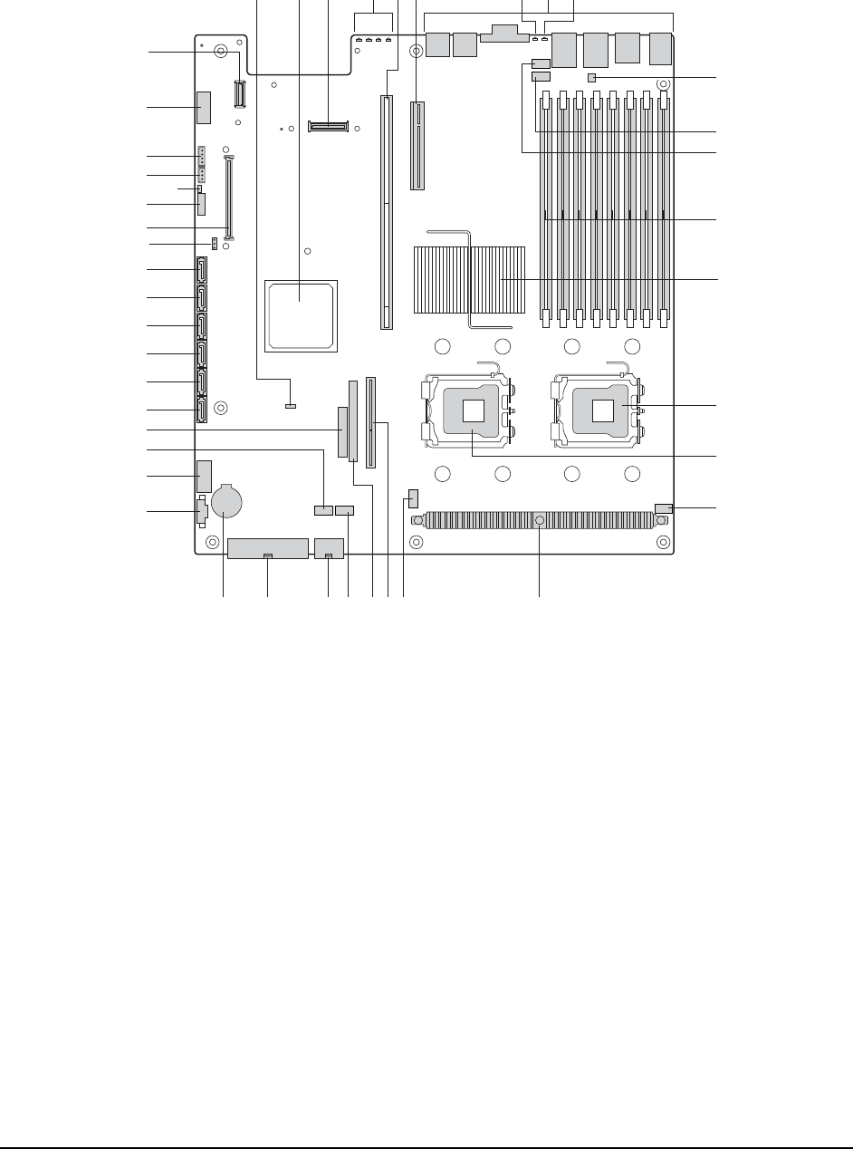
2.2.1 Connector and Component Locations
The following figure shows the board layout of the server board. Each connector and major
component is identified by a number or letter, and a description is given below the figure.
TP02071
M
N
O
L
J
K
V U
S
T
R
W
Q
P
PP
MM
LL
KK
II
HH
GG
FF
EE
DD
CC
BB
AA
Z
Y
X
B
A
ED
F
H
G
C
I
NN
OO
QQ
JJ
Comments to this Manuals