
Product Overview Intel
®
Server Board S5000PAL/S5000XAL TPS
Revision 2.0
Intel order number: D31979-011
8
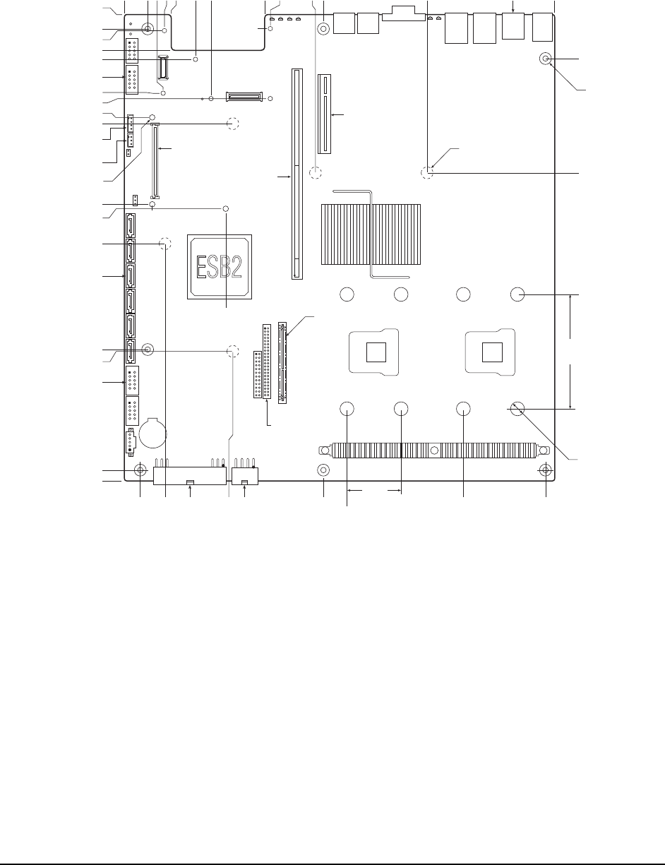
2.2.4 Server Board Mechanical Drawings
TP02316
4 x 187.93 [7.399]
2 x 0.00 [0.000]
11.02 [0.434]
11.91 [0.469]
16.76 [0.660]
33.91 [1.335]
44.89 [1.767]
82.80 [3.260]
2 x 124.46 [4.900]
288.29 [11.350]
2 x 86.89 [3.421]
16.51 [0.650]
2 x 0.00 [0.000]
15.24 [0.600]
21.59 [0.850]
45.59 [1.795]
227.33 [8.950]
3 x 312.42 [12.300]
320.04 [12.600]
127.43 [5.017]
62.66 [2.467]
67.31 [2.650]
2 x 49.35 [1.943]
10.16 [0.400]
0.91 [0.036]
2 x 101.60 [4.000]
22.86 [0.900]
0.16 [0.006]
9 x Ø 0.125 [3.18] Typ.
Lotes B2515BB2M
6012A0019603
5.08 [0.200]
9.65 [0.380]
2 x 59.69 [2.350]
124.46 [4.900]
2 x 141.25 [5.561]
38.10
[1.500] Typ.
2 x 223.80 [8.811]
2 x 281.94 [11.100]
81.28
[3.200] Typ.
2 x 3.28
[0.129]
55.35
[2.179]
8 x Ø 10.16 [0.400]
7 x Ø 3.96 [0.156]
124.26 [4.892]
Molex 22-44-7031
6012A0099701-HDR4P
Molex 22-44-7031
6012A0099701
228.60 [9.000]
Lotes B2515BB2M
6012A0019603
152.40 [6.000]
6 x Betterment
BTM-PP02.2F1611.007X
6012B0018302
AMP 794108-1
6012A0022801
Molex 3930-0080
6012A0022801
118.11 [4.650]
196.85 [7.750]
5 x Ø 8.00 [0.315]
Silkscreen on secondary
side for spacer
Lotes AAA-PCI-033-K02
6012B0051002
Lotes B4L60BB2L
6012A0105401
AMP 177983-5
6012A0103201
Molex 43202-8927
6026A0027801
Molex 877715-3205
6012A0100101
FCI 10027747-114101
6012A0105001
Figure 5. Intel
®
Server Board S5000PAL/S5000XAL – Hole and Component Positions (1 of 2)
Comments to this Manuals